Wie können Sie einfach die Skizze für Ihr Wunschprojekt zusammenstellen?
+ professionelle Vermessung GRATIS
bei Bestellung bis zum 31.12.2025 Jetzt Weihnachtsaktion nutzen
Sie haben bereits eine Vorstellung im Kopf und würden gerne die Planung Ihrer neuen Garage starten. Gratulation, super! Da sind Sie bei GARDEON richtig gelandet. :-)
In der Planungsphase (beim Einholen der Angebote) haben Sie bei uns direkt mehrere Möglichkeiten. Sie können gerne einfach und komfortabel unseren Online-Konfigurator nutzen und ein Standardobjekt genau nach Ihren Wünschen zusammenstellen. Eine weitere Option wäre es uns direkt anzurufen oder unser Team schriftlich unter info@gardeon.at zu kontaktieren.
Falls Sie jedoch nach einer wirklich speziellen Garage suchen, eine Maßanfertigung im Kopf haben, dann ist es immer am besten zusammen mit der Anfrage direkt einen Planauszug mitzusenden. Viele verfügen aber zu diesem Zeitpunkt noch über keinen Plan und haben auch noch nicht eingereicht. Kein Problem. Schicken Sie uns eine einfache Skizze, eine Zeichnung Ihrer genauen Wünsche zu – wir werden alles dafür machen um sämtliche Ihrer Wünsche in Erfüllung zu bringen. :-)
Wie kann man die Zeichnung zusammenfassen?
Generell, gibt es auch hier direkt mehrere Möglichkeiten. Von einem Architekten, durch einen Computer-Programm bis zu einem üblichen Bleistift und Blatt Papier geht alles. :-)
Die Mehrheit hat ja natürlich keine technischen Bauschule besucht und kann somit eine Zeichnung als problematisch empfinden. Für das Ausarbeiten eines passenden Angebotes ist für uns jedoch keine professionelle Skizze notwendig – kein Stress. Für uns ist es immer wichtig zu wissen, was für Maße (Breite x Tiefe x Höhe) das geplante Objekt haben sollte, wie es ausgestattet sein soll und im besten Fall auch wo das Zubehör positioniert wird (dies können Sie nämlich beliebig bestimmen). Anhand der simplen Zeichnung werden wir Ihnen dann ein Angebot genau nach Ihren Wünschen ausarbeiten – in 95% der Fälle können wir alles genau anpassen.
Somit können Sie sich einfach ganz klassisch ein Blatt Papier und einen Bleistift zur Hilfe nehmen und einfach skizzieren. Besonders hilfreich könnte hier kariertes Papier sein – nutzen Sie die kleinen Quadern einfach als einen Maßstab. Somit kann man ganz gut auch die benötigte Größe der Garage einschätzen. Gerne kann Ihre Zeichnung auch Gegenstände enthalten, die in der Garage später gelagert werden, bzw. Innenräume, die dort entstehen sollen.
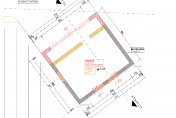
Falls Ihnen bereits ein Einreichplan zur Verfügung steht, die die Garage inkludiert, können Sie sich die ganze Arbeit natürlich etwas vereinfachen. Senden Sie uns die Unterlagen zu – wir werden ein Projekt genau nach Ihren Angaben ausarbeiten.
Es handelt sich also um keine Perfektion… Die Pläne können wir zusammen noch bearbeiten und etwas abändern. Überlassen Sie den technischen Part gerne unseren erfahrenen Kollegen und Kolleginnen.
Wir freuen uns auf die Zusammenarbeit! :-)
Brauchen Sie Rat?
Senden Sie uns eine E-Mail an die Adresse info@gardeon.at oder rufen Sie uns unter der Telefonnummer +43 720 022 376 an. Wir werden Ihnen gerne bei der Auswahl weiterhelfen.





















